Residential Tower Pulse
Eindhoven
2023–2028
Residential Tower Pulse
Eindhoven
2023–2028
176 medium-term rental properties and commercial premises
Address: Panta Rhei plein, Eindhoven
Gross floor area: 16,500 m²
Client: SDK Vastgoed
Architecture: Office Winhov
Team Office Winhov: Jan Peter Wingender, Jasper Ten Bosch, Bob van der Vleugel, Peter Nagtzaam, Maarten Plomp
Murals: Jan van der Ploeg
Renders: Flooer
Residential Tower Pulse
Eindhoven
2023–2028

Over the past decade, the former Philips site Strijp-S in Eindhoven has evolved into a vibrant urban district where new architecture meets industrial heritage. Led by Adriaan Geuze, a high-quality living and working environment has emerged. New residential buildings stand side by side with transformed factory buildings, ensuring the industrial heritage remains visible and tangible.

In Phase 4, the final stage of development, Office Winhov is designing the residential tower Pulse. Inspired by historic Philips and Bosch buildings, the design features a contemporary concrete façade where the joint pattern of the prefabricated elements is defining. The building consists of a 70-metre-high tower and a lower section, housing over 170 mid-range rental units. The striking height, combined with ceramic work by Jan van der Ploeg, makes it a landmark in the city.

The ground floor accommodates community functions and small-scale creative industry. Extra attention has been given to the communal entrance, where Jan van der Ploeg has extended his colour palette. Alongside other Phase 4 projects, Pulse enhances the entrance to the Panta Rhei square and reinforces Strijp-S as a dynamic district, where heritage and renewal come together.

Residential Tower Pulse
Eindhoven
2023–2028
Colonnade at Panta Rhei Square
The tower as new landmark in the city
The Philips site Strijp-S in Eindhoven
Overview of volume models
Façade model
Façade fragments
Overview of façade elements
The contemporary concrete façade where the joint pattern of the prefabricated elements is defining
Pulse at the Panta Rhei square
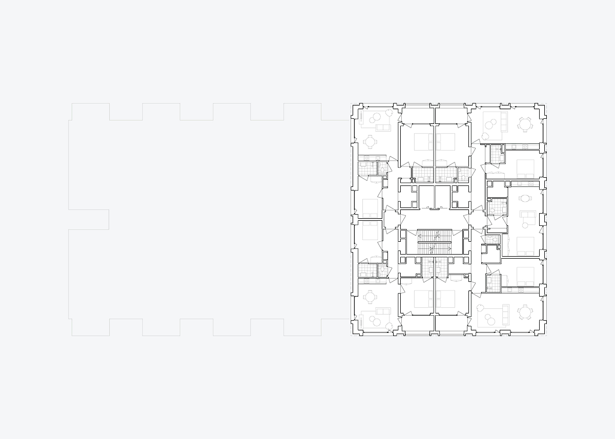
Third floor plan Tenth floor plan Fifteenth floor plan
Third floor plan
Image 1/3
Detail plinth
Study of the rhythm and element distribution in the prefab concrete façade
The communal entrance, with colour palette by Jan van der Ploeg The communal entrance, with colour palette by Jan van der Ploeg The communal entrance, with colour palette by Jan van der Ploeg
The communal entrance, with colour palette by Jan van der Ploeg
Image 1/3